Je to ještě ve mlýně.
(německé rčení)

Hořejší mlýn

Hořejší mlýn
11
Kostelec u Heřmanova Městce
538 03
Chrudim
Kostelec u Heřmanova Městce
49° 55' 27.0'', 15° 39' 9.7''
Mlýn bez funkčního vodního motoru
Budova mlýna se nachází ve východní části města, přímo pod hrází rybníka nazývaného Horní, asi 140 m jižně od místního hřbitova, kde dříve stávalo hradiště.
V roce 2022 mlýn prochází radikální rekonstrukci a přestavbou, při níž byla bohužel zničena řada původních prvků.
střed obce
Podolský potok
nepřístupný

Historie mlýna obsahuje událost z období:

Mlýn postavil mlynář Mikuláš před rokem 1600. Mlelo se zde do roku 1610, kdy byl mlýn přestavěn na železářský hamr s nejstarší vysokou dřevouhelnou pecí v Železných horách.

Události
  • První písemná zmínka o existenci vodního díla
  • Vznik mlynářské živnosti
  • Zánik mlynářské živnosti

V 1. polovině 18. století byl železářský hamr přestavěn zpět na mlýn. Dvě vodní kola na vrchní vodu poháněla dvě mlecí složení, jahelku a krupník.

V roce 1757 byla u mlýna postavena jednolistá pila, později doplněná o další listy. Její pohon obstarávalo původně vodní kolo na vrchní vodu o průměru 347 cm, od roku 1913 turbína.

Mlýn je vyobrazen na I vojenském mapování z let 1764-1768.

Ve stabilním katastru z roku 1839 je uváděn majitel Josef Suda.

Události
  • Vznik mlynářské živnosti

Před rokem 1906 bylo instalováno umělecké složení se dvěma stolicemi, jedno složení mělo francouzské kameny, pohon zajišťovalo kolo na vrchní vodu o průměru 390 cm a šířce 110 cm. V roce 1913 byla instalována Francisova turbína o výkonu 7,9 HP.

Hospodářský typ mlýna
Námezdní

V roce 1930 byla majitelkou Emilie Škrlandová. Objekt byl evidován jako mlýn a pila.

Hospodářský typ mlýna
Námezdní

Poslední mlynář se jmenoval Josef Poláček a mlel do roku 1950.

Události
  • Zánik mlynářské živnosti

Budova je evidována jako rodinný dům.

Příjmení mlynářů působících na mlýně:

  • Mikuláš
  • Suda
  • Škrland
  • Poláček

Historie mlýna také obsahuje:

před 1600 - 1610 Mikuláš

1839 Josef Suda

1930 Emilie Škrlandová

Josef Poláček

Mlýn je vyobrazen na:

Předměty spojené s osobou mlynáře a provozu:

    dochován bez větších přestaveb
    09 2017
      mlýn na potoku (50 - 1000 l/s)
      mlýnice a dům pod jednou střechou, avšak dispozičně oddělené
        zděná
        jednopatrový
        Zděná jednopatrová budova s vysokým podkrovím. Vedle budovy mlýna je menší zděná budova pekárny.
        Mlýnská hranice datována 1847.
        Mlýn se do roku 1856 nacházel v objektu bývalého kujnícího hamru (kamenné obvodní zdivo, mlýnice, světnice a komora jsou v prostoru vyčleněny pouze dřevěnými stěnami, pohon zajištěný dvěma koly, stejně jako u hamru). Následovala přestavba přízemí a zvednutí budovy do patra s lunetou ve šítě, typickou pro Heřmanoměstecko.
        Mlýn upraven z budovy místní železárny z pol. 17. stol., do zděného obvodu byla roubením vymezena mlýnice, světnice a komora. Vchod do obytné části je mlýnicí s nevyčleněnou černou kuchyní.
        • zdobený zděný štít
        • dveře
        • okno
        • schodiště
        • vyskladňovací otvor
        • trámový strop
        • krov
        • zcela bez technologie aj.
        Dochována mlýnská hranice, datována 1847
        Žádná položka není vyplněna
        Původně dvě mlecí složení, jahelka a krupník.
        Před rokem 1906 bylo instalováno umělecké složení se dvěma stolicemi, jedno složení mělo francouzské kameny.
        Na jedné hřídeli vodního kola umístěna dvě paleční kola, jedno pro mlecí složení, druhé pro pilu.
        Zaniklý
        • pila
        • krupník
        • jahelka
        • hamr
        Dochovaný
        • pekárna
        1610 byl mlýn přestavěn na železářský hamr s nejstarší vysokou dřevouhelnou pecí v Železných horách.
        Železářský hamr s pecí dýmačkou nechala v pol. 17. stol. heřmanoměstecká vrchnost přestavět na vysokou dřevouhelnou pec. Fungovala do poč. 18. stol.
        Před 1757 u mlýna postavena jednolistá pila, později doplněná dalšími listy.
        • stavidlo
        • náhon
        • vantroky
        • rybník
        • odtokový kanál
        Náhon odbočoval z potoka doprava asi 200 m nad mlýnem. Odtok od mlýna tvořil náhon k dalšímu mlýnu čp. 34. Přímo nad mlýnem je rybník. Před vodním kolem a později turbínou byly betonové vantroky široké asi 1 m.
        Typturbína Francisova
        StavZaniklý
        Výrobce
        PopisV roce 1930 měl mlýn 1 Francisovu turbínu (instalována 1913), hltnost 0,17 m3/s, spád 4,5 m, výkon 7,9 HP.
        od 1913 též turbína pro pilu
        Typturbína Francisova
        StavZaniklý
        Výrobce
        PopisV roce 1930 měl mlýn 1 Francisovu turbínu (instalována 1913), hltnost 0,17 m3/s, spád 4,5 m, výkon 7,9 HP.
        od 1913 též turbína pro pilu
        Typvodní kolo na vrchní vodu
        StavZaniklý
        Výrobce
        PopisKolo na vrchní vodu o průměru 390 cm a šířce 110 cm.
        pro pilu do r. 1913 kolo na svrchní vodu prům. 347 cm
        Žádná položka není vyplněna
        Historické technologické prvky
        • transmisní hřídele s řemenicemi (výrobek průmyslový i řemeslný)
        AutorMinisterstvo financí
        NázevSeznam a mapa vodních děl republiky Československé
        Rok vydání1932
        Místo vydáníPraha
        Další upřesněníChrudim, str. 12
        Odkaz
        Datum citace internetového zdroje
        AutorMinisterstvo financí
        NázevSeznam a mapa vodních děl republiky Československé
        Rok vydání1932
        Místo vydáníPraha
        Další upřesněníChrudim, str. 12
        Odkaz
        Datum citace internetového zdroje
        AutorLuděk Štěpán, Ivo Šulc
        NázevChrudimsko. Mlýny a další zařízení na vodní pohon
        Rok vydání2013
        Místo vydáníChrudim
        Další upřesněnístr. 103-104
        Odkaz
        Datum citace internetového zdroje

        Žádná položka není vyplněna

        Základní obrázky

        Historické mapy

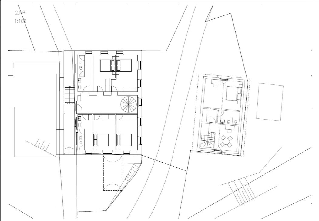
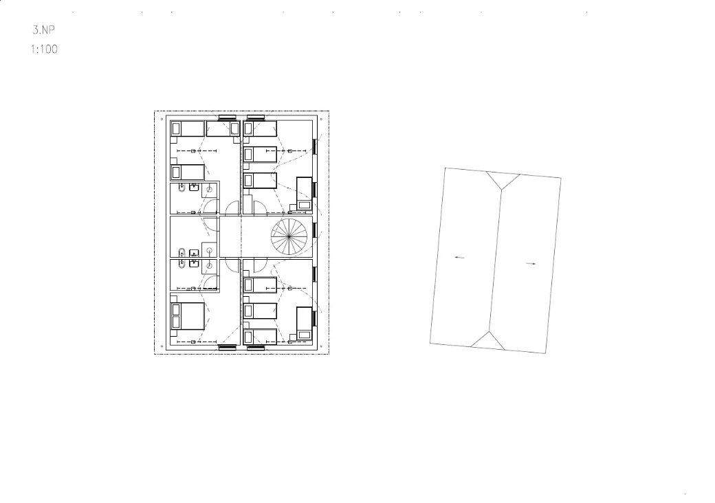
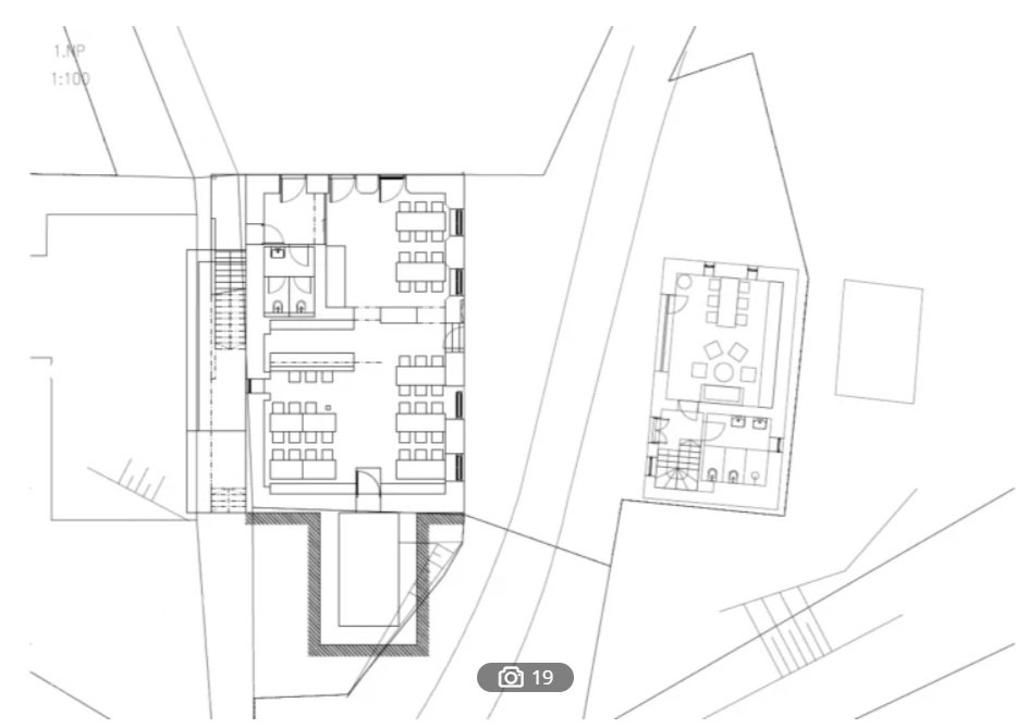
        Plány - stavební a konstrukční

        Obrazy

        Historické fotografie a pohlednice

        Současné fotografie - exteriér

        Současné fotografie - exteriér - detaily stavebních prvků

        Současné fotografie - interiér - detaily stavebních prvků

        Současné fotografie - vodní dílo

        Současné fotografie - technologické vybavení

        Vytvořeno

        19.9.2017 14:21 uživatelem cestovatelka

        Majitel nemovitosti

        Není vyplněn

        Spoluautoři

        Uživatel Poslední změna
        Rudolf (Rudolf Šimek) 19.9.2017 20:05
        doxa (Jan Škoda) 16.9.2025 22:27