Bez kamene mlýn nemele.
(estonské přísloví)

Dětřichovecký mlýn

Dětřichovecký mlýn
30
Dětřichovec
463 65
Liberec
Dětřichovec
50° 57' 5.2'', 15° 16' 34.3''
Mlýn bez funkčního vodního motoru
Bývalý mlýn v intravilánu obce Dětřichovec (Dittersbächel). Dnes slouží k obytným účelům.
Jindřichovický potok
nepřístupný

Historie mlýna obsahuje událost z období:

První písemná zmínka se nachází v činžovním rejstříku frýdlantského panství roku 1577 a vzniknul nejspíše nedlouho před tím.

1577 Adamu Seligerovi z Jindřichovic je odpuštěn ročnín nájem za mlýn v Dětřichovicích ve výši 10 kop gr. míš.

1600-1603 Melchior Seliger z Jindřichovic ročně odvádí 10 kop gr. míš. na sv. Michala

Události
  • První písemná zmínka o existenci vodního díla
  • Vznik mlynářské živnosti

1651 soupis podd. dle víry - mlýn o 1 kole na nestálé vodě, mlynář však není uveden

1654 po odchodu nekatol. obyvatelstva zůstal mlýn pustý

15.3.1676 jindřichovický rychtář Johann Schöller prodal mlýn za 80 kop gr.míš. Georgu Scholzovi, býv. mlynáři v Horní Řasnici

25.1.1690 Georg Scholz prodal mlýn svému synu Hansi Heinrichu za 74 kop 17 gr. 1 denár

7.9.1704 Hans Heinrich Scholz prodal mlýn s 12 kolem za 149 kop obci

3.1.1715 od obce koupil mlýn s 1 kolem Christof Peucker z Poustky za 152 kop gr. míš.

6.5.1726 prodává mlýn svému bratru Georgu Peuckerovi z Krásného Lesa za 200 kop gr. míš.

2.1.1756 Georg Peucker prodává mlýn dědičnému mlynáři Johannu Josephu Jarischovi ze Žibřidic za 350 kop gr. míš.

1757 Tereziánský katastr: 1 poddanský mlýn o 1 kole na nestálé vodě

Roku 1773 je mlýn zmíněn s tím, že je osvobozen od vrchnostenské roboty a povinností, mlynář Johann Heinrich Hübner platí čtvrtletní nájem 16 zl. 20 gr. Mlynář musí sám čistit náhon a na vlastní náklad dopravovat mlecí kameny.

14.12.1789 Hans Heinrich Hübner prodává mlýn svému synu Johannu Josephu Hübnerovi za 600 kop gr. míš.

19.12.1818 Josef Hübner prodává mlýn Franzi Trenklerovi, synu Antonína Trenklera, mlynáře v Lužci za 1 400 zl.

2.1.1834 Franz Tenkler koupil Dolní mlýn Floriana Bergmanna v Novém Městě pod Smrkem čp. 300

10.3.1834 Franz Tenkler prodává mlýn Franzi Schöllerovi, mlynáři v Luhu čp. 45 za 4 600 zl.

1843 Franz Schöller prodal mlýn Gottfriedu Krausemu (14.4.1797-6.12.1873) s manž. Marií Annou (*4.6.1799)

Hospodářský typ mlýna
  • Poddanský

1873 po smrti Gottfrieda Krause mlýn zdědila dcera Juliana, provd. Schwanitz (*22.12.1842)

1877 Joseph Herden

1881 Hugo Sommer

1887 prodal mlýn svému bratru Josefu Sommerovi

Roku 1904 se zde mlelo i hořčičné zrno.

31.1.1922 zakoupil Alfréd Hausmann s manž. Alžbětou Kamilou

1930 neregistrován (výkon < 2 HP)

za války provoz zastaven

1945 Hausmanovi odsunuti, objekt přidělen Vladimíru a Xeně Vrabcovým, reemigrantům z Volyně

1947 demontována Bánkiho turbína a převezena do mlýna v Háji č. 13

1982 Vladimír Vrabec mlýn  prodal, mohl zde dožít

Příjmení mlynářů působících na mlýně:

  • Hübner
  • Hausmann
  • Sommer
  • Seliger
  • Schöller
  • Scholz
  • Peucker
  • Peuker
  • Jarisch
  • Tenkler
  • Krause
  • Schwanitz
  • Herden

Historie mlýna také obsahuje:

1577 Adamu Seliger

1600-1603  Melchior Seliger z Jindřichovic

-1676 Johann Schöller

1676-1690 Georg Scholz

1690-1704 Hans Heinrich Scholz

1704-1715 obec

1715-1736 Christof Peucker

1726-1756 Georgu Peucker

1756-1773 Johann Joseph Jarisch ze Žibřidic

1773-1789  Johann Heinrich Hübner

1789-1818 Johann Joseph Hübner

1818-1834 Franz Tenkler

1834-1843 Franz Schöller

1843-1873 Gottfried Krause

1873-1881 Juliana Schwanitzová

1877 Joseph Herden

1881-1887  Hugo Sommer

1887-1822 Josef Sommer

1922-1945  Alfred Hausmann

1946-1982 Vladimír Vrabec

 

 

1756 inventář mlýna:

2 vochlovací stolice

1 staré bicí hodiny

2 mlýnské pytlíky

2 železa

1 sekernický špičák neboli dvojšpic

1 okovaná roztloukací stoupa

3 moučné truhly

2 díže na tvaroh

1 zvonek k buzení

1834 inventář mlýna:

1 okovaná stoupa

3 mlýnské pytlíky

4 mlýnská železa

2 oškrty

2 absorbéry

1 nebozez

1 koš na seno

1 moučná truhkla

2 truhly pro přípravu obilí

1 mlecí kámen - ležák

Mlýn je vyobrazen na:

Předměty spojené s osobou mlynáře a provozu:

    částečně adaptován
    10 2017
      venkovský
      mlýn na nestálé vodě (10 - 50 l/s)
      mlýnice a dům pod jednou střechou, avšak dispozičně oddělené
        hrázděná+zděná
        jednopatrový
        • dveře
        • okno
          • existující torzo polouměleckého složení
          Žádná položka není vyplněna
          1922:
          obilná mlýnice
          válcová stolice 400/300 mm
          špičák
          mlýnice na hořčici
          V minulosti se zde mlelo i hořčičné semeno.
          • náhon
          • rybník
          • odtokový kanál
          • lednice
          Horní náhon 100 m dlouhý, 35 cm široký a 26 cm hluboký.
          Dolní náhon (odtok) 25 m dlouhý, 80 cm široký.
          1922 plánováno zatrubnění
          Typturbína Bánki
          StavNezjištěn
          Výrobce
          PopisRoku 1926 bylo vodní kolo nahrazeno dvojitou Bánkiho turbínou.
          1947 demontována a převezena do mlýna v Háji čp. 13
          Typturbína Bánki
          StavNezjištěn
          Výrobce
          PopisRoku 1926 bylo vodní kolo nahrazeno dvojitou Bánkiho turbínou.
          1947 demontována a převezena do mlýna v Háji čp. 13
          Typvodní kolo na vrchní vodu
          StavZaniklý
          Výrobce
          Popis1877: 1 kolo na svrchní vodu, prům. 6,83 m
          1922: 1 kolo na svrchní vodu, prům. 7 m, šířka lopat 83 cm, hloubka lopat 22 cm, 6 ot./min., hltnost 0,03 m3/s, výkon 1,8 HP
          Žádná položka není vyplněna
          Historické technologické prvky
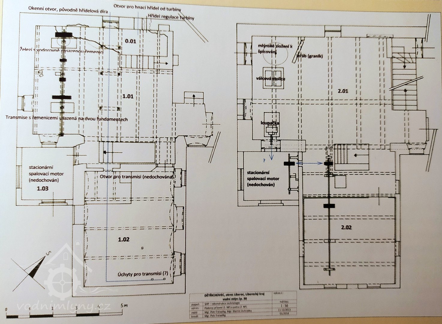
          • transmisní hřídele s řemenicemi (výrobek průmyslový i řemeslný)
          • periodická
          • moučný vysévač | Počet: 1
          • AutorPetr Freiwillig
            NázevVodní mlýn v Dětřichovci
            Rok vydání2017
            Místo vydání
            Další upřesněníKrkonoše 9/2017
            Odkazhttp://krkonose.krnap.cz/index.php?option=com_content&task=view&id=14227&Itemid=45
            Datum citace internetového zdroje5.10.2017
            AutorPetr Freiwillig
            NázevVodní mlýn v Dětřichovci
            Rok vydání2017
            Místo vydání
            Další upřesněníKrkonoše 9/2017
            Odkazhttp://krkonose.krnap.cz/index.php?option=com_content&task=view&id=14227&Itemid=45
            Datum citace internetového zdroje5.10.2017
            AutorPetr Freiwillig
            NázevVodní obilní a hořčičný mlýn v Dětřichovci
            Rok vydání2014
            Místo vydání
            Další upřesněníPrůzkumy památek, roč. 21, č. 2, str. 117-138
            Odkaz
            Datum citace internetového zdroje
            AutorPetr Freiwillig
            NázevOd mlýnů k továrnám - výrobní stavby na Frýdlantsku
            Rok vydání2017
            Místo vydáníLiberec
            Další upřesněnís. 128-130

            Žádná položka není vyplněna

            Základní obrázky

            Historické mapy

            Plány - stavební a konstrukční

            Historické fotografie a pohlednice

            Současné fotografie - exteriér

            Současné fotografie - exteriér - detaily stavebních prvků

            Současné fotografie - vodní dílo

            Současné fotografie - technologické vybavení

            Vytvořeno

            5.10.2017 17:12 uživatelem kolssteyn

            Majitel nemovitosti

            Není vyplněn

            Spoluautoři

            Uživatel Poslední změna
            Rudolf (Rudolf Šimek) 7.10.2017 17:14
            doxa (Jan Škoda) 25.3.2021 23:07