Ta mouka ještě není naměřená, z které má jíst chléb.
(německé rčení)

mlýn Wesselsky, Pazderův mlýn

mlýn Wesselsky, Pazderův mlýn
152
54
Loučky
742 36
Nový Jičín
Loučky nad Odrou
49° 41' 8.0'', 17° 47' 53.5''
Mlýn s vodním kolem
Areál vodního mlýna je významnou technickou památkou Oderska. První zmínka o vlastnictví mlýna v Loučkách je z roku 1571.
Od roku 1762 zde po 200 let působil rod Wesselskych. Zachovaná mlýnská technologie s mlýnskými kameny z křemenců, vodním kolem z dubu a transmisí do stodoly je ojedinělá. Strojní zařízení je velmi unikátní, zachovalá sestava uměleckého složení doplněna na válcové. Mlýnský náhon o délce 3 km, který přivádí vodu na mlýnské kolo až z Jakubčovic nad Odrou, je rovněž pozoruhodným dílem. V areálu jsou také bývalé hospodářské objekty, obytné prostory a prostory pro ubytování.
Odra
50055 / 8-3990
veřejně přístupný

Obecná historie:

Patrně nejstarší písemné zmínky o mlýnu pocházejí z 16. století, z let 1545  a 1571, kdy Jan Tomáš ze Zvole, představitel tehdejší vrchnosti, předal mlýn i s polem v Loučkách do vlastnictví Paulu Schwarzovi. Do 2. poloviny 18. století se na mlýně vystřídalo několik majitelů, uveďme například Stenzla Müllera, Jakuba a Georga Kutscherovi či Hanse, Martina a Karla Weigelovi. V roce 1762 prodal naposled jmenovaný mlýn v Loučkách jakubčovickému dolnímu mlynáři Johannu Wesselskemu pro jeho syna Valentina. Od něj koupil mlýn roku 1797 syn Lorenz Wesselsky. V roce 1851 mlýn převzal po otci Lorenzovi syn Josef a poměrně záhy jej prodal Ferdinadovi I. Wesselskemu za 3 000 zlatých. Ten předal mlýn svému synovi Ferdinandu II. Posledním majitelem mlýna v Loučkách z rodu Wesselskych byl Ferdinand František, jenž tragicky zahynul na konci 2. světové války. Po válce, roku 1946, převzal vodní mlýn Hubert Pazdera, rodově spřízněný s Wesselskymi. Jeho soukromé hospodaření bylo ukončeno na sklonku 50. let 20. století vynuceným vstupem do jednotného zemědělského družstva. Dnes jsou vlastníky vodního mlýna v Loučkách manželé Královi. Paní Věra Králová je starší dcerou zmiňovaného Huberta Pazdery.

xxx

Anton Rolleder se ve  práci zmiňuje k roku 1545 o jistém Andreasovi, rychtáři z Louček, jenž spolu se svým synem Martinem stanul před městským soudem v Odrách. Martin pak prodal rychtu i s mlýnem za 400 zlatých jednomu ze Stenzelů.7 Víme, že mlýn v Loučkách původně přináležel k místní rychtě. Další údaj o mlýně pochází z roku  1570, kdy jej Jan Tomáš ze Zvole předal do vlastnictví Paulu Schwarzovi. Přibližně od roku 1600 zaznamenáváme jako majitele mlýna Willischery, nějakého Martina, Stenzla Müllera, vrchnost, Kutschery, Martina Hünela (Heinela) a vdovu po něm Marinu, Weigely a Wesselské. V roce 1762 koupil od Karla Weigela mlýn v Loučkách jakubčovický dolní mlynář Johann Wesselsky pro svého syna Valentina. Od 60. let 18. století je tak historie rodu Wesselských spjata i s vodním mlýnem v Loučkách. Následujícími majiteli, zástupci jmenovaného rodu, byli Lorenz, Josef, Ferdinand (I.), Ferdinand (II.), Ferdinand Franz Wesselsky a po jeho smrti vdova Johanna.8 Těsně po druhé světové válce, v červnu 1945, převzal mlýn Hubert Pazdera spřízněný s Wesselskými ze strany matky. Dnes je areál vodního mlýna v Loučkách ve společném jmění manželů Věry (* 13. 7. 1951) a Jaroslava (* 5. 5. 1955) Králových. Paní Věra Králová je starší dcerou Huberta a Věry Pazderových. Věra Pazderová (* 17. 6. 1928), která přišla na mlýn za svým mužem Hubertem v roce 1951, zde zůstává na výměnku v hlavní budově mlýna.

 


Historie mlýna obsahuje událost z období:

Písemné prameny registrují mlýn v roce 1545, kdy je v záznamu z jednání městského soudu v Odrách zmíněn jistý Martin, který uvedl, že svému otci Andreasovi dluží ještě 4 zlatky a 5 kop zlatých za rychtu v Loučkách, s níž byl spojen vodní mlýn. Martin prodal rychtu spolu s mlýnem jednomu ze Stenzelů za 400 zl.
Konkrétněji se o mlýně a jeho podobě zmiňuje smlouva z 1.5.1570, dochovaná ve vidimusu z 18. století. 

1. 5. 1570 (25. 1. 1571 ?) Jan Tomáš ze Zvole a Kolštejna na Odrách odevzdává mlýn v Loučkách o 3 složeních i s rolí Pavlu Schwartzovi k dědičné držbě. Stanoví povinnost poddaných z Loučky a Jakubčovic opravovat a čistit mlýnskou strouhu, dovážet mlýnské kameny a dříví k opravě mlýna. Své obilí nesmí nechat mlít jinde než v tomto mlýně. Za to je mlynář povinen dávat ročně na zámek 24 šeflů dobře vymleté rži vršené oderské míry, vědro medu a 4 tolary slezské za nechování 2 prasat, a vědro medu za nechování chrta a honícho psa, od čehož je osvobozen. Také od všech jiných dávek, povinností a činží je osvobozen. (vidimus z 18. st.)

Kromě mlýna byla z náhonu poháněna i panská pila. Ve smlouvě byly definovány povinnosti poddaných, kteří museli čistit mlýnský náhon až po panskou pilu.
Zdroj: http://vademecum.archives.cz (RR)

1600 Georg Willischer, zemřel 18.5.1616



 
Události
  • První písemná zmínka o existenci vodního díla
  • Vznik mlynářské živnosti
Hospodářský typ mlýna
  • Poddanský
  • Vrchnostenský

z mlýna se odvvádí na sv. Jiří 2 maldry čistého zrna, na sv. Václava 4 tol. namísto vykrmení prasat, ze 2 fleků 24 gr., 4 slepice tzv. volské. Dále na sv. Jiří a sv. Václava po 1 gr. 3 hal. a  1 vědro medu.

1650 mlýn náležel vrchnosti, poté jej odkoupil Georg Kutscher (+ 13.8.1684)

Merten Hünel (+ 13.2.1693)

1.6.1693 vdova Marina prodala mlýn Johannu Weigelovi za 350 tol.

12.12.1723 za stejnou sumu převzal syn Martin Weigel

1742 Franz Leopold hrabě Lichnovský mu potvrzuje privilegium Jana Tomáše ze Zvole z roku 1571

1743 Barbora Kajetána Lichnovská urovnává spor mezi mlynářem Weigelem a mlynářem Wesselským z Jakubčovic  - ten nemá nárok na mleče z Jakubčovic, jelikož ti až na tři výjimky spadají pod mlýn v Loučkách

1747-1757 po Martinově smrti zde hospodařila jeho vdova, 1757 prodala mlýn za 350 tol. svému synovi Karlu Weiglovi

16.1.1762 Karel Weigel prodal mlýn za 1000 zl. Johannu Wesselskému, dolnímu mlynáři z Jakubčovic pro jeho nejstaršího syna Valtena Wesselského (*26.1.1740) za 1000 tolarů. Valentin Wesselsky se oženil v roce 1762 s dcerou rychtáře Stableho z Louček Rozinou.

24.9.1797 po svém otci koupil domikální laudemiální mlýn čp. 54 o třech složeních Lorenc Wesselský (+1831) za 2000 zl. rýn. (závdavek 1000 zl. + 50 zl. roční splátky po 20 let). Má dovoleno chytat ryby v mlýnském náhonu. Hráze mu museli pomoci opravit místní poddaní. Vrchnost mu poskytovala k témuž účelu potah a doprava mlýnských kamenů šla na její náklady. Dodávala také potřebné dřevo k zařízení mlýna a nechávala čistit mlýnskou strouhu. Lorenz Wesselsky pojal za ženu v roce 1795 dceru rychtáře z Jakubčovic Terezii Popp.

1808 u mostu přes Odru nechal postavit kamenný kříž

vrchnost povinna dodat robotníky na opravy vodního koryta, jeho čištění a dopravu mlecích kamenů a dřeva na opravy

mlynář má právo rybolovu v náhonu

1819 uzavřena smlouva o provozování pily:

1) přívod vody udržuje vrchnost a mlynář společně

2) Panský náhon dá vrchnost zhotovit na své náklady a bude ho sama udržovat. Mlynář bude na své náklady udržovat tři dřevěné žlaby a opěrnou zeď, trámy poskytne vrchnost bezplatně.

3) Pokud by došlo k odstavení pily, zaviněné tím, že mlynář opomenul opravit svůj náhon, zaplatí mlynář do vrchnostenské pokladny 50 zl. pokuty

Hospodářský typ mlýna
  • Vrchnostenský

Josef Wesselsky (1804-1879)

1879 mlýn koupil Ferdinand I. Wesselský za 3000 zl.

Ferdinand Wesselsky si v roce 1887 vzal Amálii Kossak z dědičné rychty v Dobešově.

1899 Ferdinand II. Wesselský (* 26.2.1858) se stal starostou obce

 

1919 Ferdinand František Wesselský (* 7.1.188) se oženil s Johannou Polzerovou (též spisovatelka, autorka div. hry In Maien - V květnu)

ve mlýně zřízena elektrárna, zásobující horní část obce

1930 Ferdinand Wesselsky

na konci války Ferdinand Franz Wesselský tragicky zahynul, děti Walter (1923), Helmut (1921) a Notburga (1932) vysídleny do Německa

1946 nár. správce Hubert Pazdera (přes svou matku s Wesselskými spřízněn)

po válce se zde již nemele, jen příležitostně šrotuje

1947 zastavena elektrárna, mlýn nadále slouží jen jako zemědělská usedlost

Události
  • Zaznamenání katastrofy (požár, povodeň, zranění, úmrtí, aj.)
  • Zánik mlynářské živnosti

1953 JZD zabírá většinu hospodářských budov (užívá je do roku 1983)

1959 Hubert Pazdera donucen ke vstupu do JZD

1997 po smrti Huberta Pazdery přebírá většinu usedlosti dcera Věra Králová

1999 mlýn prohlášen kulturní památkou

2003 pozemky pronajaty soukromému zemědělci
2002, 2003 - obnova mlýna, renovace složení i náhrada krovu, postupná obnova technologie
2008 - z původních 2 lopatkových kol obnoveno jedno

Příjmení mlynářů působících na mlýně:

  • Schwartz
  • Wesselsky
  • Willischer
  • Stenzl
  • Štencl
  • Kutscher
  • Hünel
  • Weigel
  • Pazdera
  • Stenzel

Historie mlýna také obsahuje:

1545 Andreas, rychtář 

Martin

Stenzel

1571 Pavel Schwarz

1600-1616 Jiří Willischer

1616 mlynář Martin, Stenzl (Štencl)

1650-1683 Jakub Kutscher

1684 Jiří Kutscher (syn)

1684-1693 Martin Hünel

1693-1723 Jan Weigel

1723-1747 Martin Weigel (syn)

1747-1757 vdova Weigelová

1757-1762 Karel Weigel (syn)

1762 Jan Wesselský

1762-1797 Valentin Wesselský (syn)

1797-1831 Vavřinec Wesselský (syn)

1831-1854 Josef Wesselský (syn)

1854 Ferdinand Wesselský (syn)

1854-1919 Ferdinand Wesselský ml. (syn)

1919-1945 Ferdinand František Wesselský (syn)

1946-1997 Hubert Pazdera (syn Marie Wesselské)

1997-  Věra Králová (dcera) s manželem

 


Zobrazit více

Mlýn je vyobrazen na:

Předměty spojené s osobou mlynáře a provozu:

    dochován bez větších přestaveb
    05 2012
      venkovský
      mlýn na malé řece (1000 – 7000 l/s)
      mlýnice a dům pod jednou střechou, avšak dispozičně oddělené
      • klasicismus do roku 1850
      • historizující a architektura druhé pol. 19. století
      • raná moderna do roku 1920
      • moderní 1920 – 1945
      zděná
      jednopatrový
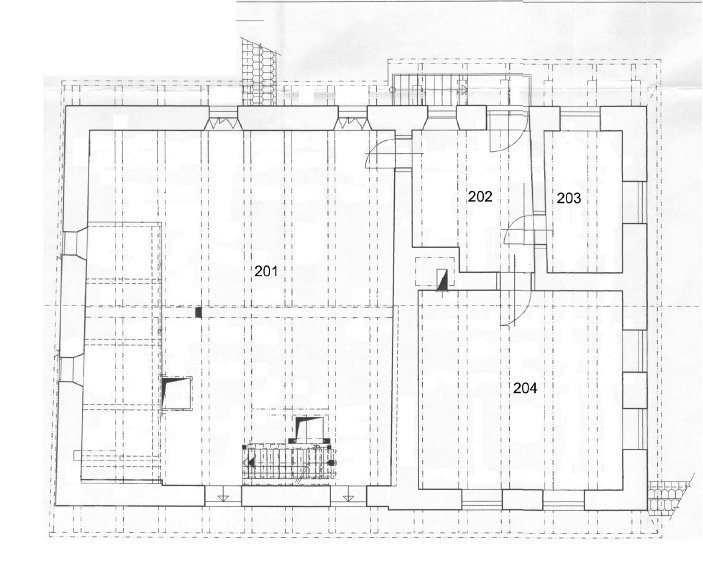
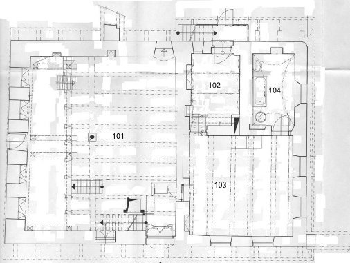
      mlýn: Zděný objekt podélného půdorysu zahrnující mlýnici s obytnou částí.
      hospodářská budova I.: Zděný omítaný objekt členitého půdorysu krytý sedlovými střechami, sloužící hospodářskému účelu.
      hospodářská budova II.: Jednopatrové zděné stavení původně sloužící k ubytování čeledínů a k uskladnění obilí.
      hospodářská budova III.: Zděná omítaná budova na půdorysu písmene L navazující krátkým křídlem postaveným nad náhonem na dům pro čeledíny.
      stodola: Pilířová stodola postavená ve 40. letech 20. století.
      výměnek: Zděná přízemní budova postavená na půdorysu písmene L. K obytné části sloužící původně jako výměnek přiléhaly chlévy. Objekt pochází patrně z 1. poloviny 19. století, v 1. čtvrtině 20. století byl adaptován.
      východní brána: Zděná brána završená stříškou uzavírající areál vodního mlýna ze strany příjezdové komunikace.
      Zděný omítaný jednopatrový volni stojící dům mlýna situovaný okapovou stranou k silnici, zastřešený sedlovou zvalbenou střechou s vikýřem krytou břidlicí. Lichoběžníkové štíty prolomeny třemi obdélnými okny členěnými na šest tabulek. Omítka tvrdá. Fasáda, členěna korunní profilovanou římsou, lisenovými rámy (pozůstatek původní výzdoby fasády). Okna různého staří a
      členění. Dvorní strana a štíty ma jí okna členěná na šest tabulek, obytná část okna novější, ve štítovém průčelí obráceném k vodnímu kolu jsou okna jednoduchá, členěná na osm tabulek. Rámování oken plochou šambránou s klenákem zůstalo zakončeno ve štítu nad náhonem. Do obytných prostor vstup z dvorní strany. V přízemí kuchyně s trámovým záklopovým omítaným stropem. Okenní otvory jsou zakončeny segmentovými záklenky. Do patra vede dřevěné venkovní schodiště s vyřezávaným zábradlím. Ložnice i předsíň mají trámové záklopové stropy - desky záklopu kryty lištami (v ložnici omítnuté). Hladká kachlová kamna v barvě slonové kosti. Prostory mlýna přístupné z průčelní okapové strany. Strojové vybavení mladší, válcová stolice, dva šrotovníky sign. Hübner a Opitz Pardubice, Böhmen, loupačka.
      Dvě vodní kola, po válce fungovala jako elektrárna, V přízemí cihlová dlažba, mezi pattr trámové stropy.
      První zmínky v urbáři z r. 1650.
      Novodobé úpravy ve 20. století.
      Ojediněle dochovaný komplex vodního mlýna s areálem s novějším mlecím zařízením
      Udržován.
      PhDr, L. Svátková, 1995
      vlastník: Hubert Pazdera, čp.152, Loučky
      brány:
      Vjezd do dvora zděnou omítanou branou zastřešenou sedlovou střechou krytou břidlicí. Dvůr uzavírá (směrem k náhonu) obdobná brána s dvoukřídlými vraty a sedlovou střechou kry­tou břidlicí mezi budovou mlýna a protilehlou budovou sýpky.
      2010: Současný stav - brány jsou rozděleny na samostatné evidenční listy jako položky areálu 2 (východní brána) a 8 (jižní brána). Pro nejasnost v identifikaci a popisu, kdy byla původně vybrána jedna brána a přiřazen popis obou, byla jižní brána doprohlášena.
      Vyžaduje opravu.
      hospodářské stavení:
      Na bránu vjezdu navazuje přízemní hospodářská budova na půdorysu T ze smíšeného zdiva. Střechy sedlové a s valbou, kryté břidlicí. Na střeše vikýř se vstupem na půdu. Jeden štít pokryt břidlicí, druhý deštěný.
      Přední stěna části hospodářského stavení, otevřená, slouží k úschově vozů, strojů ap. Chlévy klenuty valené s výsečemi. Záklenky vnitřních okenních otvorů zakončeny segmentem.
      Ve chlévech kamenné žlaby, podlaha cihelná (síla zdi l,50m).
      Další část hospodářského stavení částečně deštěná, spáry mezi deskami, kryty lištami. Zděná štítová stěna se slepými okny. Mezi sousední obytnou budovou z r. 1910 a hospodářským stavením dvoukřídlá deštěná vrata.
      Původní hospodářské stavení patřící k budově mlýna.
      Vyžaduje opravu.
      jednopatrový dům víceúčelový
      Zadní stěnou k náhonu přiléhá jednopatrové stavení původně pro čeledíny - zděná omítaná stavba obdélného půdorysu o deseti okenních osách. Fasáda hladká, členěná korunní, pro­filovanou římsou. Sedlová střecha kryta břidlicí. Okna pra­voúhlá se segmentovými záklenky a malá okna průmyslová. Přízemí prolomeno několika typy různých vstupních dveří do místností plochostropých, zaklenutých pruskými klenbami ne­bo klenbami do travers. Patro druhotně sloužilo k uskladně­ní obilí. Krov ležatá stolice s vrcholovou vaznicí, Další hospodářská budova zděná omítané přízemní, postavena ve sva­hu na půdoryse L, přistavěna k zadní fasádě domu pro dělníky. Sedlové střechy kryty břidlicí, štít deštěný. Část soklu je z kamene. Krátké křídlo je postaveno přes náhon (pod nímž protéká). Ze strany zahrady je vstup přímo na půdu. Okna obdélná, členění na čtyři tabulky nebo na šest. Místnosti plochostropé.
      Maštal pro koně, skladiště, sýpky, ubytovny pro čeledíny.
      Nedílná součást areálu vodního mlýna.
      Mlýn poháněla dvě kola na vrchní vodu. Po 2. světové válce byla vodní kola využívána k výrobě elektřiny, která byla dodávána do veřejné sítě.
      K areálu přiléhá obytný dům postavený v r. 1920, přízemní s podkrovím. Sedlová střecha kryta eterni tem. Fasáda jednoduchá (rámování kolem oken) a klenák.
      Přiléhající chlévy klenuty plackami na pase.
      stodola:
      Obdélného půdorysu, sedlová střecha kryta eternitem, štíty deštěné s prvky na spodní straně vyřezávanými. Sokl kamenný, hranolové pilíře z cihel, mezi pilíři deštění.
      Stěny prolomeny dvěma dvoukřídlými vraty. Ke stodole při­stavěn deštěný přístavek kurníku.
      Z roku 1940 - 1945
      Stav dobrý.
      Budova mlýna je zděný omítaný volně stojící dům, zastřešený polovalbovou střechou krytou břidlicí. Exteriér i interiér budovy je s mnoha umělecko-řemeslnými detaily. Vjezd do dvora je umožněn zděnou omítanou branou zastřešenou sedlovou střechou krytou břidlicí. Na bránu navazuje přízemní hospodářská budova, která vznikla ve stejném období jako budova mlýna, vystavěná na půdorysu písmene T ze smíšeného zdiva. Střecha je sedlová valbová, krytá břidlicí. Zadní stěnou přiléhá k náhonu jednopatrové stavení z 19. století, původně pro čeledíny. Jedná se o obdélnou stavbu s hladkou jednoduchou fasádou a se sedlovou střechou krytou břidlicí. Mlýn poháněla dvě kola na vrchní vodu, v současné době jsou zde kola z roku 1947. Náhon je veden z řeky Odry. Areál uzavírá stodola na obdélném půdorysu se sedlovou střechou. Sokl je kamenný, pilíře jsou hranolové z cihel. Areál mlýna, který počal vznikat v polovině 17. století, byl v minulosti upravován a rozšiřován, dodnes si ovšem zachoval nejen svoji autenticitu, ale také svoji atmosféru.
      Jedná se o mimořádně hodnotný, ojediněle dochovaný, areál mlýna, který se naprosto nezastupitelně podílí na urbanistickém a architektonickém formování oderského regionu.
      Charakteristika, popis:
      1) budova č.p. 151 (bývalý výměnek s chlévy), na pare. č. 334/2: dřívější budova výměnku s chlévy se nachází v severozápadní části areálu vodního mlýna v Odrách - Loučkách. Jedná se o samostatně stojící přízemní zděnou omítanou stavbu zbudovanou na půdorysu písmene „L“. V současnosti je východní část budovy využívána k bydlení, včetně podkroví. Exteriér i interiér této části stavby prošel výraznou adaptaci a dostavbou během 1. čtvrtiny 20. století. Svědčí o tom nejen dochované interiérové dveřní výplně, stropní konstrukce a celkově upravená vnitřní dispozice domu, ale rovněž pokus o jednoduché architektonické ztvárnění pohledově nejexponovanějších fasád - východní a části jižní. Okenní otvory východní fasády jsou orámovány jednoduchými plochými šambránami s klenáky, se zdůrazněnými rohy v horním úseku a s vertikálním přesahem v dolním úseku šambrán. Plocha fasády je po obvodu doplněna lisenovým rámem, vyjma předsazeného soklu. Střešní rovina je z východu prolomena vyzděným štítem převýšené střední okenní osy fasády, který fakticky tvoří sedlový vikýř. Okenní otvory jižní fasády jsou pouze v horní třetině doplněny plochým orámováním s klenáky, stejně jako dva okenní otvory v přízemí zadní severní fasády. Štít severní fasády je prolomen jedním středovým oknem, zbylou část průčelí pak prolamuji menší okenní otvory s dřevěnými výplněmi členěnými do kříže. Západní část budovy si doposud uchovala nejen ze strany exteriéru prostý vzhled hospodářského objektu, kde původně většina vnitřních prostor sloužila jako chlévy. Ze strany poměrně rozlehlého dvora je jižní fasáda budovy č.p. 151 prolomena třemi vstupy, dvěma do hospodářské části objektu a jedním hlavním vstupem do části obytné, krytým jednoduchým přístřeškem dřevěné konstrukce. V hlavním vstupu jsou osazeny nové jednokřídlé dřevěné rámové dveře s prosklenými výplněmi a nadsvětlíkem. Jižní fasáda je dále prolomena dvěma kastlíkovými okny s novými dřevěnými výplněmi členěnými do písmene „T“ za použití tzv. euro profilů.
      Okenní výplně, včetně dveřní výplně hlavního vstupu, jsou prozatím ponechány v barvě dřeva. Plochu fasády v hospodářském úseku dále prolamují dvě malá okénka, jedno bez výplně stejně jako vstupy do této části. Okénko umístěné blíže k hlavnímu vstupu je opatřeno novou dřevěnou výplní členěnou do kříže a jištěnou zvenku jednoduchou železnou mříží. Nad tímto okénkem je situován otvor na půdu, která byla v minulosti využívaná k uskladnění sena. Tento otvor do prostoru krovu je krytý dřevěným deštěním. Západní štítová fasáda je prolomena celkem pěti menšími okenními otvory s dřevěnými staršími výplněmi, vesměs jištěnými železnými mřížemi. Budova č.p. 151 je završena dvěma sedlovými střechami krytými zčásti šedými azbestocementovými (eternitovými) čtvercovými šablonami kladenými na koso, zčásti provizorně plastovými šablonami imitujícími eternit. Nad střešní rovinu vystupuje komín z režného zdivá. Pohledově neexponovaná část západní střešní roviny je nově prolomena třemi okny. Vnitřní prostory mladší obytné části objektu jsou většinou plochostropé, pouze chodba a zadní severozápadní místnost jsou zaklenuty segmenty do traverz a valenou segmentovou klenbou. Plochu vnitřní stěny u hlavního vstupu prolamuje nika uzavřená půlkruhovým záklenkem. Ve třech plochostropých východních místnostech jsou dochovány dřevěné dveřní výplně včetně profilovaných zárubní a kovových závěsů z 1. čtvrtiny 20. století (kliky jsou již nové).
      Jednokřídlé rámové dveře jsou jednotně opatřeny bílým nátěrem. Dřevěným schodištěm s vyřezávaným zábradlím se vstupuje do obytného podkroví s dvěma místnostmi, opět s dochovanými rámovými dveřmi z 1. čtvrtiny 20. století. V přízemí této obytné části je položena nová keramická dlažba a korková podlahová krytina, v podkroví tvoří pochozí plochu dřevěné parkety. Starší část někdejšího výměnku, situovanou západně od dřevěného schodiště, reprezentují dvě místnosti zaklenuté plackami a horizontálně oddělené úzkou chodbou rovněž završenou plackovou klenbou s pasy, kterou se původně vstupovalo do chlévů. U právě popisovaných místností se dochovaly jednokřídlé dřevěné rámová dveře včetně profilovaných zárubní, kovaných závěsů a krabicových zámků patrně z 1. poloviny 19. století, přestože dveřní závěsy by mohly být typově zařazeny i do konce století 18. Zbylá západní část vnitřní dispozice příslušného objektu byla původně vyhrazena pro zmiňované chlévy. Tyto prostory se dochovaly zřejmě v podobě z 1. poloviny 19. století, nicméně dále upravované také ve století minulém. Východní místnost chlévů je završena třemi poli plackové klenby na pasech, vnitřní západní stěnu prolamuje menší výklenek. Stěny místností jsou aktuálně neomítnuty a lze zde pozorovat uplatnění smíšeného zdivá (kámen, cihla). Západní místnost bývalých chlévů je završena pěti poli segmentové klenby do traverz, jež jsou přerušena jedním překladem. I zde se místy objevuje smíšené zdivo. Podlahy uváděných místností jsou betonové. Prostory chlévů nadále slouží víceméně k hospodářským a provozním účelům. Na základě typologie dochovaných klenebních konstrukcí, dveřních výplní s kováním a případně dalších konstrukčních detailů lze konstatovat, že budova č.p. 151 reprezentuje ve své současné podobě především dvě stavební fáze. První fázi zřejmě z 1. poloviny 19. století a druhou z 1. čtvrtiny 20. století. Pochopitelně nelze vyloučit existenci starších konstrukcí zejména v části objektu, jež byla vyhrazena někdejšímu výměnku s chlévy.
      Výměnek je v rámci popisovaného areálu mlýna opakovaně připomínán již v 18. století, ovšem není možné s určitostí stanovit, jednalo-li se skutečně o dnešní stavbu č.p. 151. Mapa císařského otisku Louček (Lautsch) z roku 1836 pak zaznamenává v příslušné části areálu zděnou budovu obdélného půdorysu. Na objektu dále evidujeme stavební zásahy z přelomu 20. a 21. století, které ovšem výrazně nenarušily starší dochované konstrukce ani stavební detaily.
      2) brána, na pare. č. 334/1: areál vodního mlýna vymezují dvě podobné brány, jedna z nich, uzavírající areál z východu, již je kulturní památkou. Druhá brána se nachází v jižní části areálu, mezi budovou mlýna č.p. 152 a hospodářskou jednopatrovou stavbou. Jedná se o zděnou omítanou bránu s dřevěným trámovým překladem, završenou sedlovou stříškou krytou přírodní břidlicí. Čtvercové šablony z přírodní břidlice jsou kladeny rovně (kolmo na sebe navazují), střední horizontální pás střešní roviny je pak doplněn o šablony kladené na koso. Západní pilíř brány je zvětší části zapuštěn do zděné konstrukce zmiňované hospodářské stavby. U obou pilířů registrujeme mírně předsazené sokly a mírně zesílenou horní část, do níž jsou uloženy trámy dřevěného překladu. V soklech jsou z vnitřních stran vezděny mlýnské kameny či jejich části, jež určují možnou šířku průjezdu branou a zabraňují tak mechanickému poškození pilířů. Pilíře brány jsou opatřeny bílým nátěrem. Bránu uzavírala dřevěná jednoduchá dvoukřídlá prkenná vrata. V současnosti je osazen na západním pilíři pouze fragment jednoho z křídel uvedených vrat. Západní pilíř popisované brány je vezděn do hospodářské stavby, která je zčásti datována do 19. století (část objektu podlouhlého půdorysu, lemující mlýnský náhon, byla zřejmě v 19. století výrazně adaptována a dále pak upravována i ve století 20.). Z tohoto období může pocházet rovněž jižní brána. Nicméně bez zjištění provázání jednotlivých zděných konstrukcí, nálezů konkrétních archivních pramenů či provedení dendrochronologie trámů dřevěného překladu nelze její stáří pevně stanovit.
      Výměnek s chlévy, brána, kamenný most a k němu směřující část vodního kanálu představují významné součásti areálu vodního mlýna v Loučkách - již existující nemovité kulturní památky. Z popisů jednotlivých staveb je patrné, že se zde dochovaly hodnotné stavební konstrukce v podobě zdivá, klenebních systémů, dveřních a zčásti okenních výplní, zastřešení brány či celkové kamenné stavby mostu.
      Uváděné konstrukce jsou cenné zároveň z hlediska použití tradičních materiálů i technologie zpracování a konstrukčního řešení. Svou nepopiratelnou hodnotu ma kamenné i cihelné zdivo jednotlivých staveb, v případě budovy výměnku s chlévy dřevěné rámové dveře zřejmě z 1. poloviny 19. století a z 1. čtvrtiny 20. století včetně kovových závěsů a u starších dveří rovněž krabicových zámků, šablony z přírodní břidlice na střeše brány včetně jejich způsobu zpracování a kladení, mlýnské kameny osazené do branských pilířů i trámový překlad brány.
      Také vlastní umístění jmenovaných staveb v rámci areálu vodního mlýna je podstatnou hodnotou, která určuje jeho celkový ráz, jenž se během staletí vyvíjel a měnil. Vodní mlýn v Loučkách má nesporně bohatou historii a celý areál tvoří výrazný urbanistický prvek obce i okolní krajiny.
      výše uvedený soubor představuje významnou součást areálu vodního mlýna a zároveň dokládá hodnotné stavební konstrukce v podobě zdivá, klenebních systémů, dveřních a zčásti okenních výplní, zastřešení brány a kamenné stavby mostu. Uváděné konstrukce jsou cenné i z hlediska použitých materiálů, technologie zpracování a konstrukčního řešení
      budova č.p. 151, brána, most, část vodního náhonu tvoří nedílnou součást areálu vodního mlýna v Loučkách, který je díky své dochované technologii nej hodnotnější stavbou tohoto druhu v Moravskoslezském kraji. Brána propojuje budovu samotného mlýna s hospodářským objektem, budova č.p. 151 (výměnek a chlévy) představuje původní část hospodářského dvora, most s částí vodního náhonu navazují na vodní náhon procházející samotným mlýnským areálem. Všechny stavby se dochovaly v dobrém stavu a s většinou původních konstrukcí a architektonických prvků.
      Předmětný soubor věcí vodního mlýna v Loučkách zahrnuje budovu č.p. 151, bránu, most a zbývající část vodního kanálu. Vodní mlýn, o kterém se zmiňují písemné prameny již od 16. století a skutečně má doloženou velmi bohatou historii, patří díky své zachované technologii k nej hodnotnějším stavbám tohoto typu v Moravskoslezském regionu. Předmětné objekty se nacházejí v dobrém stavebně-technickém stavu s četnými původními stavebními konstrukcemi. Mlýnský areál má i nepopiratelný urbanistický význam, kdy se pohledově uplatňuje nejen jako jedna z dominant obce, ale i jejího blízkého okolí. Předmětné stavby tedy historicky a funkčně doplňují areál vodního mlýna v Loučkách, který již je kulturní památkou.
      xxx
      Jako nejstarší se jeví jižní návodní strana mlýna a přilehlé části západní a východní zdi ze smíšeného zdiva. S převahou kamene, konkrétně lomového i říčního.
      · Původně byl vybaven jako starý český mlýn s mlýnskou hranicí (nedochováno)
      · Obytné tedy severní trakty v dnešním půdorysném rozsahu musely být postaveny po polovině 18. století.
      Ve 2. polovině 60. let 19. století Wesselští přestavěli mlýn znovu - na starší typ uměleckého mlýna.
      Vložena nová mlýnská hranice, dendrochronologicky datovaná do let 1867/68 a technologie byla rozložena do pěti výškových úrovní.
      Nové výškové uspořádání se týkalo pouze jižní strany - mlýnice. Její severní část (obytná) zůstala završena staršími v přízemí prokazatelně ještě pozdně barokními stropními trámy, které byly nyní vyneseny průvlaky, dendrochronologicky rovněž datovanými do 60. let 19. století.
      Patrně na přelomu 19. a 20. století byla upravena obytná část mlýna. Byl sejmut dymník a odstraněna klenba dymníkové kuchyně, kterou nahradila segmentová klenba do traverz. Tak se také v místě varné podesty ocitly sekundárně použité barokní dveře s tulipánovými závěsy, dnes směřující do obytné světnice.
      Poč. 30. let 20. století Wesselští modernizovali - nová válcová stolice. Střecha kryta břidlicí, doloženo plány u Králových z roku 1931 od stavitele v Jakubčovicích Ferdinanda Lipowského (1865 - ?), zásahy do náhonu.
      1947 - ve mlýně se přestalo mlít
      Jihovýchodně od mlýna stávala pila.
      Zděná budova přestala být po válce udržována. Záhy začala chátrat, v 50. letech 20. století se propadla střecha a nadzemní zdivo bylo z velké části odstraněno. Stopa obvodových zdí pily je dnes patrná podél náhonu.
      Za současného stavu poznání není jasné, zda byl mlýn od počátku zděnou stavbou, nebo existoval po nějakou dobu své existence (zčásti) dřevěný. Podle analogií zjištěných při konstrukci jiných mlýnů je možné, že návodní strana mlýna stojí na dřevěné roštové nebo možná jen kůlové konstrukci.
      Pro nejstarší stavební fáze mlýna nejsou k dispozici dendrochronologická data, výstavbu a počátky mlýna bylo možno uchopit pouze relativní chronologií. Jako nejstarší se jeví jižní návodní strana mlýna a přilehlé části západní a východní zdi ze smíšeného zdiva s převahou kamene, konkrétně lomového i říčního, sesbíraného v tomto konkrétním případě v potoce nebo dokonce v náhonu.
      Vodní mlýn v Loučkách musel mít ve svých prameny dokazatelných počátcích technologické vybavení, které literatura označuje jako starý český mlýn.11 Obvykle šlo o budovy běžné výšky, podle všeho s využitím patra jako skladu obilí, v jejichž interiéru bylo mlýnské technologické zařízení, poháněné vodním kolem, nebo koly rozvinuté na mlecí podlaze nesené tzv. mlýnskou hranicí.
      Poměrně markantně jsou na východním průčelí od jižní strany mlýna výstupkem odlišeny severní obytné trakty se znaky pozdně barokní stavby. Je možné, že mlýn byl postaven v 1. polovině 16. století jako budova s kamennou návodní stranou a roubenými obytnými místnostmi, jak bývaly mlýny v raném novověku často budovány.
      Vývoj obytných traktů se podařilo zařadit s jistou tolerancí. Písemný pramen z roku 172313 uvádí u mlýna výměnek v nově postavené světnici. Z pramene nevyplývá ani konkrétní situace ani materiál světnice.
      Obytné tedy severní trakty v dnešním půdorysném rozsahu musely být postaveny po polovině 18. století, jak nasvědčuje i modelace obou severních nároží odsazeným zaoblením a profilovaná korunní římsa, obíhající s malým přesahem pouze na severním průčelí. Dendrochronologickým datováním se podařilo získat data po roce 1766, po roce 1775 a po roce 1780.14 Vzorky byly odebrány pouze ze stropních trámů mlýnice, strop světnice s ohledem na její současné obytné využití datován nebyl. Pravděpodobně mlýn modernizovali Wesselští. Roku 1762 koupil mlýn Loučkách od Karla Weigela za 1 000 tolarů jakubčovický dolní mlynář Jan Wesselsky pro svého syna Valentina.
      Dispozičně šlo o poměrně obvyklou sestavu průchozí mlýnice, s hlavním vstupem od východu od cesty a protějším západním vstupem ze dvora. Ve střední části dispozice byla při východní stěně kuchyně, samozřejmě dymníková a vybavená chlebovou pecí. Světnice ležela v severovýchodním nároží, klenutá komora v severozápadním. Velmi pravděpodobně bylo současně postaveno patro obytné části mlýna.
      Znovu byla práva a povinnosti mlynáře definována při převzetí mlýna Lorencem Wesselským v roce 1797.17 Vrchnost mu dopravovala mlecí kameny, které si koupil, a také dřevo na zařízení mlýna.
      Po více než stu letech přestavěli Wesselští mlýn ve 2. polovině 60. let 19. století podruhé. Technologie starého českého mlýna byla nahrazena starším typem technologie tzv. uměleckého mlecího složení, kde začíná proces zpracování zrna nahoře pod střechou v horním technologickém patře. Konkrétně pro případ mlýna Wesselsky chybí prameny,18 které by uváděly autentické pojmenování technologie, již literatura uvádí jako starší typ uměleckého mlýna, někdy označovaného jako americký.
      Přestavba technologie mlýna v Loučkách byla ovšem naprosto zásadní. Do prostoru mlýnice byla vložena nová mlýnská hranice, dendrochronologicky datovaná do let 1867/68,19 a technologie byla rozložena do pěti výškových úrovní. Nové výškové uspořádání prostoru se ovšem týkalo pouze jižní části mlýnice. Její severní strana zůstala završena staršími v přízemí prokazatelně ještě pozdně barokními stropními trámy, které byly nyní vyneseny průvlaky, dendrochronologicky rovněž datovanými do 60. let 19. století.
      Z téže doby pocházel pravděpodobně i krov mlýna, sejmutý bez dendrochronologického datování v roce 2002. V této podobě zachytila mlýn ještě s šindelovou střechou a bedněným jižním štítem nejstarší dosud známá fotografie, poprvé vydaná jako součást Rollederovy kroniky v roce 1903.21 V exteriéru dostal mlýn velmi pravděpodobně tehdy členění fasády lisenovými rámci, jaké zachycuje ikonografie mlýna do 60. let 20. století.
      Patrně na přelomu 19. a 20. století byla upravena obytná část mlýna. Byl sejmut dymník a odstraněna klenba dymníkové kuchyně, kterou nahradila segmentová klenba do traverz. Tak se také v místě varné podesty ocitly sekundárně použité barokní dveře s tulipánovými závěsy, dnes směřující do obytné světnice.
      Počátkem 30. let 20. století nechali Wesselští modernizovat mlýn ještě jednou. Mlecí proces byl upraven novou válcovou stolicí. Střecha byla nově pokrytá břidlicí, na východní straně střechy byly zrušeny stávající vikýře a nahrazeny jedním rozměrným technologicky zdůvodněným vikýřem. K poměrně rozsáhlé opravě ve 30. letech 20. století se nedochovaly nebo nejsou známy písemné prameny, ale zato se přímo ve mlýně dochovala plánová dokumentace z roku 1931 od stavitele v Jakubčovicích Ferdinanda Lipowského (1865 - ?). Nejzásadnější zásahy se týkaly náhonu, který byl upraven jako komplexní vodní dílo, zásobující vodou rybník, mlýn v Loučkách a továrnu na knoflíky (přestavěný Dolní mlýn) a Horní mlýn v Jakubčovicích.
      Jihovýchodně od mlýna stávala pila. Zděná budova přestala být po válce udržována. Záhy začala chátrat, v 50. letech 20. století se propadla střecha a nadzemní zdivo bylo z velké části odstraněno. Stopa obvodových zdí pily je dnes patrná podél náhonu.
      Za 1. republiky poháněla kola mlýna Wesselsky kromě mlýnských složení i agregát na výrobu elektřiny. Provoz skončil v roce 1947 elektrifikací celé obce.
      Po válce byl mlýn ještě nějakou dobu v provozu. V roce 1958 Hubert Pazdera ještě šrotoval.24
      Ve 2. polovině 20. století byly provedeny některé stavební úpravy. Poruchová a kouřící hnědá kachlová kamna ve světnici v přízemí byla v roce 1953 nahrazena bílým sporákem. Změn doznala i zařízení v chodbě, která ještě Věra Pazderová charakterizovala jako chlebovou pec, koláčovou pec a sporák. V roce 1967 byla měněna okna. V roce 1968 použili Pazderovi břízolitovou omítku na severním a západním průčelí, a tak zaniklo členění rámci ze zdvojených lisen.
      Roku 1999 se stala majitelkou mlýna dcera Huberta a Věry Pazderových, paní Věra, dnes provdaná Králová. Královi začali se systematickou stavební obnovou historické stavby, od roku 1999 kulturní památky areálu vodního mlýna Wesselsky.
      Současná podoba mlýna je dána největší měrou třemi zásadními přestavbami, realizovanými mlynáři z rodu Wesselsky. Jde o pozdně barokní výstavbu obytné části mlýna ve zděném provedení, přestavbu mlýnice za účelem modernizace technologie do podoby uměleckého mlýna staršího typu ve 2. polovině 60. let 19. století, doprovázenou přeložením výškových úrovní podlah v technologické části a počátkem 30. let 20. století pak obohacení technologie o válcové stolice a další zařízení.
      První kroky k památkové ochraně areálu vodního mlýna v Loučkách byly učiněny v polovině 90. let 20. století. V červnu 1995 podal Památkový ústav v Ostravě návrh na prohlášení věci za kulturní památku. Až na konci léta 1999 byla památková ochrana areálu vodního mlýna Wesselsky uzákoněna a vztahovala se na 1) vodní mlýn č. p. 152 s pozemkem parc. č. 334/1, včetně technologického vybavení; 2) východní bránu na pozemku parc. č. 334/1; 3) zemědělskou stavbu s pozemkem parc. č. 334/1; 4) zemědělskou stavbu s pozemky parc. č. 334/1, 335/2 a 693/3; 5) vodní kanál s pozemky parc. č. 693/1 (část) a 693/2 (část); 6) stodolu s pozemkem parc. č. 335/1 a dále pak na pozemky parc. č. 334/2, 336/1, 336/2 a 338, vše katastrální území Loučky nad Odrou. Po deseti letech se přistoupilo ke zpracování návrhu na rozšíření prohlášení nemovité kulturní památky – areálu vodního mlýna. V létě 2010 se novými památkově chráněnými objekty v rámci areálu staly: 7) obytná stavba č. p. 151 (bývalý výměnek s chlévy); 8) jižní brána na pozemku parc. č. 334/1 a 9) most na pozemcích parc. č. 341 a 51/1. Byla rovněž rozšířena ochrana vodního kanálu o úsek směřující ke zmiňovanému mostu.
      Nepochybně zajímavou stavbou, která byla prohlášena za kulturní památku dodatečně, je bývalý výměnek s chlévy, aktuálně vedený pod č. p. 151. Jedná se o samostatně stojící nepodsklepenou přízemní budovu na půdorysu písmene „L“, nacházející se u severní hranice areálu mlýna. K bydlení je využívaná východní část objektu, v níž jsou umístěny centrální síň s vestavěným schodištěm, tři plochostropé místnosti (pokoje a kuchyň) a menší zadní prostora zaklenutá segmenty do traverz. Také síň je v předním úseku završena segmenty do traverz, v zadním úseku pak valenou segmentovou klenbou. Dřevěným schodištěm s vyřezávaným zábradlím se vstupuje do obytného pod- kroví s dvěma pokoji a místností s hygienickým zařízením. V pokojích jsou dochovány jednokřídlé rámové dřevěné dveře, včetně profilovaných zárubní a zapuštěných závěsů s kuželovitým zakončením (kliky se štítky jsou již nové), pocházející asi z první čtvrtiny 20. století, kdy budova prošla rozsáhlou adaptací zahrnující patrně i dostavbu severovýchodní části. V plochostropých místnostech jsou zachovány trámové stropy, nyní opatřené sádrokartonovým podhledem. U dřevěných stropních konstrukcí nelze vyloučit existenci sekundárně použitých trámů. Obytné prostory byly v minulosti komunikačně propojeny s hospodářskou částí objektu pomocí úzké, plackovou klenbou završené chodbičky vedoucí ze síně do chlévů. K tomuto někdejšímu průchodu přiléhají ze severu a jihu téměř identické komory, taktéž zaklenuté plackami. Vstupy do komor jsou opatřeny profilovanými dřevěnými zárubněmi s jednokřídlými rámovými dveřmi s dochovaným kováním – vnějšími vertikálními rozvilinovými závěsy, krabicovými zámky, klikami, klíčovými štítky a přítuhou. Zdá se, že většina prvků kování pochází asi z konce 18. a první poloviny 19. století. Západní část vnitřní dispozice domu byla kromě dvou komor původně vyhrazena pro chlévy a možná kůlnu. Dnes jsou tyto prostory využívané jako kotelna a prádelna. Bývalé chlévy jsou završeny třemi poli plackové klenby na pasech. Západní provozní místnost je zaklenuta segmenty do traverz, přerušenými překladem.
      U neomítaných či poškozených úseků stěn lze pozorovat jak zdivo z lomového kamene, tak rovněž zdivo smíšené a čistě cihelné. Nad západním traktem objektu č. p. 151 se nachází jednoduchý hambalkový krov s dřevěnou vestavbou patra, přístupný pouze z exteriéru horním otvorem v jižním průčelí, uzavřeným prkennými vrátky (ve východním štítu je pak ze strany půdy zazděn blíže neurčený otvor). Patrně z první čtvrtiny 20. století pochází jednoduché architektonické ztvárnění fasád východní části domu č. p. 151 v podobě stylizovaných okenních šambrán s klenáky a obvodových lizén dosedajících na předsazený sokl. Střešní rovina u této části budovy je z východu prolomena vyzděným štítem převýšené střední okenní osy, který je ukončen sedlovou střechou. V obytné části domu jsou osazena nová dřevěná kastlová okna členěná do písmene „T“. Západní část stavby si uchovala i ze strany exteriéru prostý vzhled hospodářského objektu, umocněný nejen hladkými fasádami, ale také menšími různorodými okenními otvory, z nichž některé jsou jištěny železnými mřížemi. Hlavní vchod do domu je situován z jihu, vede přímo do síně a je opatřen novými, zčásti prosklenými dveřmi s nadsvětlíkem. Východní obytná část je přístupná i bočním severozápadním vchodem. Oba vchody jsou chráněny přístřešky. Dnešní provozní místnosti (kotelna a prádelna) disponují samostatnými vstupy v jižním průčelí. Budova č. p. 151 je završena dvěma sedlovými střechami krytými jednak azbestocementovými (eternitovými) šablonami, jednak provizorně šablonami plastovými, imitujícími právě eternit. Nad střešní roviny vystupují komíny z režného zdiva. Pohledově méně exponovaná střešní rovina nad obytnou částí domu je nově prolomena třemi okny.
      Ačkoli je výměnek u vodního mlýna několikrát připomínán již v 18. století, bez podrobnějšího průzkumu nelze s určitostí stanovit, zda byla tehdy popisována dnešní budova č. p. 151 či její část. Avšak vzhledem k rozsahu hospodářství u mlýna Wesselsky a charakteru zdejšího výměnku na konci 18. století, sestávajícího ze světničky, chléva pro krávu, kůlny nad sklepem, 1/4 sklepa na brambory a zahradou s ovocnými stromy, lze předpokládat, že se jednalo o zvláštní domek.13 Indikační skica obce Loučky z roku 1836 zachycuje v místě objektu č. p. 151 zděnou stavbu na obdélném půdorysu, patřící k domovnímu číslu 54 a vedenou jako obytná budova,14 zřejmě s funkcí výměnku.
      Jak víme, výměnek byl zakládán za účelem zabezpečení přestárlých příslušníků rodiny. Měl povahu věcného břemene usedlosti a nejčastěji se zřizoval starému hospodáři a jeho ženě. Výměnek se stával důležitou součástí smlouvy o převodu usedlosti za života starého hospodáře, ať formou úplatnou či bezúplatnou. Trvání výměnku se běžně určovalo smrtí výměnkářovou. K jeho zániku mohlo vést i uzavření nového sňatku starého hospodáře. Hubert Pazdera, který převzal mlýn v roce 1945, pronajal bývalý výměnek s chlévy místnímu řezníkovi Augustinu Krejčířovi. Ten si v nárožní jihovýchodní místnosti objektu č. p. 151 zřídil prodejnu, do níž se vstupovalo ze strany východního štítového průčelí.
      Při poslední rozsáhlé rekonstrukci domu č. p. 151, která probíhala v letech 2007–2008, byl východní vstup nahrazen znovu okenním otvorem. Zbývající dvě místnosti přiléhající ze severu k někdejší prodejně řeznictví byly využívány jako kuchyň a pokoj. Podkroví s vestavbou zůstávalo neobydleno. Chlévy sloužily k ustájení koní. Po Augustinu Krejčířovi převzalo řeznictví družstvo Jednota. V březnu 2000 se novou majitelkou bývalého výměnku s chlévy stala Marie Poskočilová – mladší dcera Huberta a Věry Pazderových –, a to na základě dědického řízení v důsledku úmrtí Huberta Pazdery (poté ještě následovalo zrušení podílového spoluvlastnictví). Již v květnu téhož roku darovala jmenovaná budovu č. p. 151 svému synovi Miroslavu Jánošíkovi. Ten ji na konci roku 2005 prodal (i s příslušným pozemkem) manželům Královým, kteří dnes objekt užívají jako rodinný dům.17 Jen připomeňme, že nynější výměnek vyhrazený pro Věru Pazderovou se nachází v hlavní budově mlýna č. p. 152.
      Dalšími dvěma objekty v rámci areálu vodního mlýna Wesselsky, prohlášenými za kulturní památky ex post, jsou jižní brána a kamenný most tvořící krátký úsek jihovýchodní hranice areálu. Zděná omítaná brána s mohutným dřevěným překladem vymezuje vstup do dvora mezi budovou mlýna č. p. 152 a jednopatrovou hospodářskou stavbou u náhonu. Je ukončena sedlovou stříškou krytou šablonami z přírodní břidlice. U obou pilířů brány registrujeme mírně předsazené sokly a zesílenou horní část, do níž jsou uloženy trámy dřevěného překladu. V soklech jsou vezděny mlýnské kameny, nebo jejich fragmenty, určující možnou šířku průjezdu a zabraňující tak mechanickému poškození pilířů. Omítaná zděná konstrukce brány je opatřena bílým nátěrem. Nově jsou zde osazena dřevěná dvoukřídlá prkenná vrata (ztužení provedeno ze severu), přičemž v západním křídle je prolomen menší uzavíratelný dveřní otvor. Most spojující břehy mlýnského náhonu je zbudován z lomového kamene a završen valenou půlkruhovou klenbou. Jedná se o jedinou část popisovaného areálu, která nespadá do vlastnictví současných držitelů vodního mlýna v Loučkách. Poznamenejme však, že most byl s určitostí v průběhu 19. a 20. století udržován a opravován rodinami Wesselskych a Pazderů. V této „tradici“ pokračují i dnešní majitelé mlýna – Věra a Jaroslav Královi.
      • kamenické prvky barokní a mladší
      • dveře
      • okno
      • epigrafické památky (nápisy, datování aj.)
      • schodiště
      • střešní nástavba
      • vyskladňovací otvor
      • prostup pro hřídel vodního kola
      • vrata, brána
      • tesařsky zdobené podpůrné sloupy
      • trámový strop
      • klenba
      • krov
      • dveře
      • schodiště
      • epigrafické památky (nápisy, datování aj.)

      ObjektKonstrukce/prvekRok smýcení
      čp. 152 - Wesselsky mlýnstropní trámy mlýnice1777+
      mlýnstropní trámy mlýnicepo 1766
      mlýnstropní trámy mlýnicepo 1775
      mlýnstropní trámy mlýnicepo 1780
      mlýnmlýnská hranice1867/68
      mlýnprůvlaky stropních trámů po 1860
      • existující umělecké složení
      Soupis pro vnitřní zařízení mlýna Wesselsky čp. 151 (Nový Jičín)
      Projekt vypracoval David Veverka – odborný restaurátor mlýnských strojů v roce 2015

      V celém mlýně je doposud zachováno velmi vzácné strojní zařízení z konce 19. století a z počátku 20. stol., mlýn se tak řadí mezi nejcennější na území ČR.

      pohon:

      1. vodní kolo
      Dřevěná hřídel vodního kola prochází hřídelovým otvorem do mlýnice. Čepy se otáčí v dřevěných kluzných ložiskách. Hřídel je osazena litinovým věncem – palečným kolem, jehož dřevěné palce zapadají do pastorku vertikální předlohové hřídele a tvoří tak pravoúhlý převod. Na této předlohové hřídeli je velké litinové paleční kolo s čelními palci značného průměru. Je zde i třecí brzda. Na čelní paleční kolo je připojeno několik pastorků taktéž na vertikálních hřídelích. První z nich má pod pastrorkem zubovou spojku (možnost odstavení provozu) a ve spodní části je další paleční převod pravoúhlý. Roztáčí horizontální hřídel s velkou řemenicí na pohon válcové stolice. Druhý pastorek připojený na čelním palečném kole otáčí kamenným mlecím složením taktéž s možností odstavení provozu přes zubovou spojku. Třetí pastorek pak roztáčí dlouhou vertikální hřídel zvanou královskou, vedenou přes mezipodlaží do prvního patra. Zde je paleční pravoúhlý převod na horizontální transmisi uloženou na ložiskových věšácích (kluzné uložení) staršího typu. Tato transmise rozvádí řemeny potřebnou pohonnou energii na jednotlivé stroje buďto přímo, nebo přes další menší transmise v jednotlivých patrech.

      2. vodní kolo
      Dřevěná hřídel vodního kola procházela hřídelovým otvorem do mlýnice. Čepy se otáčely v dřevěných kluzných ložiskách. Hřídel je osazena litinovým věncem – palečným kolem, jehož dřevěné palce zapadají do pastorku vertikální předlohové hřídele a tvoří tak pravoúhlý převod. Na této předlohové hřídeli je velké litinové paleční kolo s čelními palci. Je zde i třecí brzda. Na čelní paleční kolo jsou připojeny dva pastorky taktéž na vertikálních hřídelích. První z nich má pod pastrorkem zubovou spojku (možnost odstavení provozu) a roztáčel druhé kamenné mlecí složení. Druhý za pomoci pravoúhlého převodu hnal horizontální hřídel s řemenicí, ta převáděla řemenem pohyb na předlohovou transmisi odkud byl realizován pohon dynama. Hřídel od pastorku (čelního převodu) ale pokračovala svisle dále do prvního podlaží, kde podobně jako u první královské hřídele nalezneme pravoúhlý paleční převod. Roztáčel horizontální hřídel jdoucí skrz zeď mlýnice do stodoly na pohon zemědělských strojů. První a druhý pravoúhlý převod mohl být spojen nahozením řemenu přes mezi transmisi.

      Ve všech patrech je dále několik rozvodových menších transmisí k pohonu jednotlivých mlýnských strojů přes ploché kožené řemeny. Všechny transmise mají kluzné uložení starého typu.

      Strojní zařízení:
      V podkolí (nejspodnějším patře mlýna) kromě zmíněných soukolí spatříme paty kapsových dopravníků, moučné truhly, pytlovací lávky a dvojnásobnou mlýnskou hranici se zdobnou profilací na zhlaví.



      mezipodlaží:
      - válcová mlecí stolice v litinové skříni s rýhovanými válci, výrobce J. Hübner a K. Opitz - Pardubice z roku 1898
      - 2x kamenné mlecí složení z konce 19. stol. s regulací (lehčením) a s jeřábem na zdvih kamenů
      - 2x dynamo

      1. patro:
      - 2x moučný hranolový vysévač řemeslné výroby z konce 19. stol.
      - sítové žejbro s excentrem řemeslné výroby z konce 19. stol.
      - pozůstatek štosky – tarár a excetr žejbra
      - elektrorozvodná deska

      2. patro:
      - loupačka průchodová, kombinovaná s kartáčovacím strojem, výrobce F. Holtzhausen a Co. Teplice, počátek 20. stol.

      podstřeší:
      - čistící hranolový vysévač řemeslné výroby, počátek 20. stol.
      - magnet
      - koukolník (triér) s tzv. stokláskovým sektorem s netypickým pohonem přes čelní ozubený převod, výrobce neznámý, počátek 20. stol.
      - čistící tarár, řemeslná výroba, konec 19. stol.
      - hranolový předvysévač, výroba řemeslná, konec 19. stol.
      - 2x odlučovač (filtr) zvaný autokap, výroba řemeslná, poč. 20. stol.

      Všemi patry prochází několik řemeslně vyrobených kapsových dopravníků z konce 19., nebo počátku 20. století. Dále se zde zachoval pytlový výtah taktéž z počátku 20. století.
      VýrobceJulius Hübner a Karl Opitz, Pardubice
      VýrobceJulius Hübner a Karl Opitz, Pardubice
      Výrobcemlynář, sekerník
      Popis
      VýrobceF. Holtzhausen a Co., Hossen i. Sa., Teplitz-Turn i. Böh.
      PopisLoupačka od německo-české firmy.
      Ve 2. polovině 60. let 19. století Wesselští přestavěli mlýn znovu - na starší typ uměleckého mlýna.
      Vložena nová mlýnská hranice, dendrochronologicky datovaná do let 1867/68 a technologie byla rozložena do pěti výškových úrovní.
      Poč. 30. let 20. století Wesselští modernizovali - nová válcová stolice,
      Mlýn o třech složeních modernizovaný ve 30. letech 20. století na válcový poháněla dvě kola, třetí vodní kolo pohánělo pilu snesenou v 50. letech 20. století.
      štoska a žejbro
      Zaniklý
      • pila
      Dochovaný
      • výroba elektrické energie
      • pohon zemědělských strojů
      Transmise jdoucí do stodoly k pohonu zemědělských strojů je umístěna na vysokých křížových dřevěných kozlících pod stříškou. K výrobě elektrické energie sloužily dříve jedno, později dvě dynama.
      Kromě mlýna byla z náhonu poháněna i panská pila.
      Z pily se dochoval pouze setrvačník.
      • jez
      • stavidlo
      • náhon
      • vantroky
      • jalový žlab
      • odtokový kanál
      • lednice
      • most, propustek
      Mlýn poháněla voda z náhonu, který se od řeky odděloval na jezu v Jakubčovicích, vedeného podle všeho ve stejné trase jako dnes. Tentýž náhon hnal vodu i na kola Horního a Dolního mlýna v Jakubčovicích, jejichž existenci dokládají písemné prameny rovněž pro 2. polovinu 16. století. Horní mlýn je zmiňován roku 1555, Dolní s jedním složením je zachycen k roku 1570. Pro 2. polovinu 16. století zachycují prameny narovnávání sporů mezi vrchností a poddanými Louček i Jakubčovic, jejichž příčinou jsou i povinnosti, nadefinované jako nutnost vozit své obilí do zámeckého mlýna v Odrách. Uvedené souvislosti svědčí pro výstavbu náhonu mezi Jakubčovicemi a Loučkami pravděpodobně v 1. polovině 16. století.
      Náhon je veden od Jakubčovic z řeky Odry v délce cca 3 km ke mlýnu.
      3) most, na pare. č. 341 a 51/1 : jedná se o most, který spojuje břehy mlýnského náhonu, a přes nějž v současnosti vede obecní komunikace. Most je zbudován z lomového kamene a završen valenou půlkruhovou klenbou z obdobného materiálu. Břehy po obou stranách náhonu jsou v bezprostřední blízkosti mostu zpevněny kameny loženými na plocho do terénu. Přestože je most vystavěn pomocí tradiční technologie, jeho datace je bez nálezu konkrétních archivních pramenů poměrně složitá. Mapa císařského otisku Louček (Lautsch) z roku 1836 most ve stávajícím místě mlýnského náhonu zaznamenává. Jisté je, že most byl spravován rodinami Wesselskych a Pazderů v 19. a 20. století. Hubert Pazdera byl rodově spřízněn s rodinou Wesselskych a vlastnil mlýn po válce až do konce 50. let minulého století. Ve 30. letech 20. století proběhla rekonstrukce mlýnského náhonu a není vyloučeno, že tehdy byl opravován také kamenný most. Aktuálně je most udržován manžely Královými - současnými vlastníky areálu vodního mlýna.
      4) část vodního kanálu, na pare. č. 693/2: kanál napájený vodou z řeky Odry vede z Jakubčovic, kde v minulosti sloužil rovněž k pohonu dvou vodních děl. Koryto náhonu v areálu mlýna v Loučkách je zpevněno lomovým kamenem loženým do cementové malty. V úseku vodního náhonu, který se v současnosti nachází již mimo areál kulturní památky a směřuje dále ke kamennému mostu, jsou částečně zpevněny lomovým kamenem oba břehy - stěny koryta. Stáří vodního náhonu je možné odvodit od počátků existence mlýna, respektive mlýnů, vybudovaných na trase tohoto kanálu.
      Lze předpokládat, že již v 16. století vodní náhon fungoval. V minulosti na náhonu jistě probíhaly přinejmenším udržovací práce, přičemž poslední větší dokončená rekonstrukce se uskutečnila ve 30. letech 20. století.
      Ve smlouvě byly definovány povinnosti poddaných, kteří museli čistit mlýnský náhon až po panskou pilu.
      · Mlýn poháněl náhon, který se od hlavního toku odděloval v Jakubčovicích. Poháněl i vodní kola
      Horního a Dolního mlýna v Jakubčovicích, doložených písemně ve 2. polovině 16. století
      Vodní provozy na náhonu:
      Mlýn č. 16 Herberta Kaspera v Jakubčovicích
      Továrna na knoflíky Emila Teltschika and Co- č. 19 v Jakubčovicích
      Mlýn č. 54 v Loučkách Emila Wesselského
      Pila hraběte Emila Potockého č 54 v Loučkách
      Typvodní kolo na vrchní vodu
      StavDochovaný
      VýrobceFrantišek Mikyška, Kojetín
      PopisMlýn poháněla dvě kola, třetí vodní kolo pohánělo pilu snesenou v 50. letech 20. století.
      Širší, celodřevěné vodní kolo na vrchní vodu typu korečník, jenž bylo nedávno postaveno jako nové sekerníkem Mikyškou s partou.
      1930 (mlýn): 2 kola na svrchní vodu
      1) hltnost 0,28 m3/s, spád 4,2 m, výkon 11 HP (8,104 kW)
      2) hltnost 0,22 m3/s, spád 3,95 m, výkon 7,5 HP (5,55 kW)
      1930 (pila): 1 kolo na svrchní vodu, hltnost 0,15 m3/s, spád 3,5 m, výkon 4,5 HP (3,33 kW)
      Typvodní kolo na vrchní vodu
      StavDochovaný
      VýrobceFrantišek Mikyška, Kojetín
      PopisMlýn poháněla dvě kola, třetí vodní kolo pohánělo pilu snesenou v 50. letech 20. století.
      Širší, celodřevěné vodní kolo na vrchní vodu typu korečník, jenž bylo nedávno postaveno jako nové sekerníkem Mikyškou s partou.
      1930 (mlýn): 2 kola na svrchní vodu
      1) hltnost 0,28 m3/s, spád 4,2 m, výkon 11 HP (8,104 kW)
      2) hltnost 0,22 m3/s, spád 3,95 m, výkon 7,5 HP (5,55 kW)
      1930 (pila): 1 kolo na svrchní vodu, hltnost 0,15 m3/s, spád 3,5 m, výkon 4,5 HP (3,33 kW)
      Žádná položka není vyplněna
      Historické technologické prvky
      dvojnásobná
      • francouzský kámen | Počet: dvě složení a mnoho vyřazených
        • Válcová stolice s 1 párem rýhovaných válců v litinové skříni
        • průchodová
        • válcový
        • čistírenský vysévač | Počet: 1
        • moučný vysévač | Počet: 2x
        • předvysévač | Počet: 1
          • autokap
          • šnekový dopravník | Počet:
          • kapsový výtah | Počet:
          • pytlový výtah | Počet:
          • AutorPoskočilová
            NázevMarkéta
            Rok vydání2016
            Místo vydáníOdry Loučky
            Další upřesněnípřepis rozhovoru uskutečněného 2. a 3. 11. 2013
            Odkazhttps://www.pribehy20stoleti.cz/pribehy/2016168_zivot-na-mlyne-wesselsky/#pribeh
            Datum citace internetového zdroje17. 4.2017
            AutorPoskočilová
            NázevMarkéta
            Rok vydání2016
            Místo vydáníOdry Loučky
            Další upřesněnípřepis rozhovoru uskutečněného 2. a 3. 11. 2013
            Odkazhttps://www.pribehy20stoleti.cz/pribehy/2016168_zivot-na-mlyne-wesselsky/#pribeh
            Datum citace internetového zdroje17. 4.2017
            AutorNovosad Jaroslav
            NázevVodní mlýn Wesselsky - Odry, Loučky
            Rok vydání2002
            Místo vydáníVysoké Mýto
            Další upřesněníSborník referátů ze semináře Vodní mlýny
            Odkaz
            Datum citace internetového zdroje
            AutorMinisterstvo financí
            NázevSeznam a mapa vodních děl RČS
            Rok vydání1932
            Místo vydáníPraha
            Další upřesněnísešit 17 (Opava), s. 16
            AutorJiří Tichánek - Pavel Šmíra
            NázevVodní mlýny na Novojičínsku
            Rok vydání2012
            Místo vydáníOstrava - Kunčičky
            Další upřesněnís. 253-270
            AutorPavel Solnický
            NázevVodní mlýny na Moravě a ve Slezsku I. díl
            Rok vydání2007
            Místo vydáníPraha
            Další upřesněnís. 102-106
            AutorIng. Petr Šustek
            NázevVodní mlýn v Loučkách
            Rok vydání1994
            Místo vydáníOdry
            Další upřesněníOderský zpravodaj 2/94, s. 14
            AutorKRÁLOVÁ, Věra
            NázevVodní mlýn Wesselsky
            Rok vydání2008
            Místo vydáníOdry
            Další upřesněníIn: Poodří, roč. 11, 2008, č. 4, s. 64-65
            AutorGAVENDOVÁ, Marcela, KOUBOVÁ, Marta, LEVÁ, Pavla
            NázevKulturní památky okresu Nový Jičín
            Rok vydání1996
            Místo vydáníNový Jičín - Ostrava
            Další upřesněnís. 156-158
            AutorROLLEDER, Anton
            NázevDějiny města a soudního okresu Odry
            Rok vydání2002
            Místo vydáníOdry
            Další upřesněnís. 80, 108, 146, 166, 209,238,275,390,394,404,433,536
            AutorNárodní památkový ústav - Památkový katalog
            NázevVodní mlýn
            Odkazhttps://www.pamatkovykatalog.cz/vodni-mlyn-12883977
            Datum citace internetového zdroje07 2025

            Místo uloženíZemský archiv v Opavě
            Název fondufond Sbírka pozemkových knih
            Název archiváliepozemková kniha Louček
            Inventární číslo, signaturasign. A 23-15
            Místo uloženíZemský archiv v Opavě
            Název fondufond Sbírka pozemkových knih
            Název archiváliepozemková kniha Louček
            Inventární číslo, signaturasign. A 23-15
            Místo uloženíZemský archiv v Opavě
            Název fondufond Velkostatek Odry
            Název archiválieurbář panství (1685)
            Inventární číslo, signaturainv. č. 9

            Základní obrázky

            Historické mapy

            Plány - stavební a konstrukční

            Obrazy

            Historické fotografie a pohlednice

            Současné fotografie - exteriér

            Současné fotografie - exteriér - detaily stavebních prvků

            Současné fotografie - interiér

            Současné fotografie - interiér - detaily stavebních prvků

            Současné fotografie - vodní dílo

            Současné fotografie - technologické vybavení

            Současné fotografie - předměty spojené s osobou mlynáře

            Ostatní

            Vytvořeno

            30.1.2013 11:54 uživatelem spendlik

            Majitel nemovitosti

            Není vyplněn

            Spoluautoři

            Uživatel Poslední změna
            Rudolf (Rudolf Šimek) 9.5.2019 22:12
            David Veverka (David Veverka) 3.3.2017 13:39
            Radim Urbánek 24.12.2018 12:50
            Radomír Roup (Radomír Roup) 3.3.2017 13:39
            doxa (Jan Škoda) 18.11.2025 21:40