Není všechno zrno, co se přinese na mlýn.
(německé přísloví)

Fučíkův mlýn

Fučíkův mlýn
22
Lažišťka
383 01
Prachatice
Lažišťka
48° 59' 36.6'', 14° 4' 6.2''
Mlýniště bez mlýna
Pod obcí Lažišťka na potoce, který je přítokem Zlatého potoka se rozhodl místní sedlák Jan Fučík postavit mlýn. Jeho žádosti z r. 1849 bylo vyhověno. Kdy mlýn s jedním mlýnským složením začal mlít není známo. V matrikách je první mlynářské dítě, narozené na mlýně, zapsáno v r. 1872. Poslední písemná zpráva o provozu mlýna je z r. 1930. Budova mlýna byla zbourána někdy v letech 1967-68 a na jejím místě byl postaven rekreační objekt
Jižně od obce Lažišťka
Študlarský potok
volně přístupný

Historie mlýna obsahuje událost z období:

Povolení k jeho postavení si podal roku 1849 Jan Fučík, držitel sedlácké živnosti čp. 12 v Lažišťce. Chtěl postavit mlýn o jednom složení a jednou stoupou na své louce, které se říkalo Horní potůčky.

Události
  • První písemná zmínka o existenci vodního díla
  • Vznik mlynářské živnosti

Mlýn uveden v Seznamu vodních děl Republiky československé z r. 1930, majitel Václav Nusko.

Budovu mlýna byla zbourána v letech 1967-1968 a místo ní je postavený nový rekreační domek.

Události
  • Zánik budovy mlýna

Příjmení mlynářů působících na mlýně:

  • Jakš
  • Nusko

Historie mlýna také obsahuje:

Jan Fučík

Jan Jakš od r.1871

Václav Nusko od r.1918


Zobrazit více

Zobrazit více

Mlýn je vyobrazen na:

Předměty spojené s osobou mlynáře a provozu:

    neexistuje
    05 2020
      venkovský
      mlýn na nestálé vodě (10 - 50 l/s)
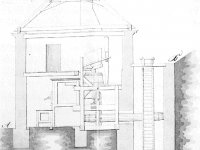
      mlýnice a dům pod jednou střechou, avšak dispozičně oddělené
      • raná moderna do roku 1920
      zděná
      jednopatrový
      mlýn zbořen 1967-1968, na jeho místě novostavba
          • zcela bez technologie aj.
          Žádná položka není vyplněna
          1 složení a 1 stoupa
          Zaniklý
          • stoupa
          • stavidlo
          • náhon
          • akumulační nádržka
          Typvodní kolo na vrchní vodu
          StavZaniklý
          Výrobce
          Popis1930: 1 kolo na svrchní vodu, hltnost 0,05 m3/s, spád 5 m, výkon 2,5 HP
          Typvodní kolo na vrchní vodu
          StavZaniklý
          Výrobce
          Popis1930: 1 kolo na svrchní vodu, hltnost 0,05 m3/s, spád 5 m, výkon 2,5 HP
          Žádná položka není vyplněna
          Historické technologické prvky
          AutorDigiArchiv SOA v Třeboni
          NázevMatriky fary Frantoly
          Rok vydání
          Místo vydání
          Další upřesnění
          Odkazhttps://digi.ceskearchivy.cz/matriky-rimskokatolicka_cirkev-f-frantoly
          Datum citace internetového zdroje22.5.2020
          AutorDigiArchiv SOA v Třeboni
          NázevMatriky fary Frantoly
          Rok vydání
          Místo vydání
          Další upřesnění
          Odkazhttps://digi.ceskearchivy.cz/matriky-rimskokatolicka_cirkev-f-frantoly
          Datum citace internetového zdroje22.5.2020
          AutorDigiArchiv SOA v Třeboni
          NázevSčítací lidu pro čp.22 obce Lažišťka
          Rok vydání
          Místo vydání
          Další upřesnění
          Odkazhttps://digi.ceskearchivy.cz/DA?menu=0&doctree=1sifblb&id=606349
          Datum citace internetového zdroje22.5.2020
          AutorMinisterstvo veřejných prací
          NázevSEZNAM A MAPA VODNÍCH DĚL REPUBLIKY ČESKOSLOVENSKÉ
          Rok vydání1932
          Místo vydáníPraha
          Další upřesněníSešit 2, s. 32
          Datum citace internetového zdroje22.5.2020
          AutorJaroslava Pixová
          NázevMlýny na Zlatém potoce
          Rok vydání2014
          Místo vydáníPutim
          Další upřesněnístrana 74
          Datum citace internetového zdroje22.5.2020
          AutorSokA Prachatice
          NázevVodní kniha OÚ Prachatice I
          Rok vydání
          Místo vydání
          Další upřesněníč.pol.79a, strana 147
          Odkaz
          Datum citace internetového zdroje22.5.2020

          Žádná položka není vyplněna

          Základní obrázky

          Historické mapy

          Plány - stavební a konstrukční

          Současné fotografie - exteriér

          Současné fotografie - vodní dílo

          Ostatní

          Vytvořeno

          22.5.2020 20:55 uživatelem pepino

          Majitel nemovitosti

          Není vyplněn

          Spoluautoři

          Uživatel Poslední změna
          Rudolf (Rudolf Šimek) 4.6.2020 22:10
          doxa (Jan Škoda) 28.2.2023 11:30